Căn nhà 72 m2 tạo cảm giác cứ 'tan ra, rộng rãi, xuyên suốt'

Theo Người đồng hành

Hệ thống vách ngăn được thiết kế có thể di chuyển linh hoạt, mọi giới hạn cố hữu bị loại bỏ. Khu vườn đan xen xuất hiện và biến mất, nhà vệ sinh ẩn trong tủ gỗ... tạo cảm giác rộng rãi.

Căn nhà phố nhỏ ở TP HCM diện tích 4 x 18 m cho 7 thành viên sinh sống nên được yêu cầu càng rộng càng tốt.
Căn nhà phố nhỏ ở TP HCM diện tích 4 x 18 m cho 7 thành viên sinh sống nên được yêu cầu càng rộng càng tốt.
Căn nhà 72 m2 tạo cảm giác cứ 'tan ra, rộng rãi, xuyên suốt' - Ảnh 1
Ngôi nhà được thiết kế để loại bỏ mọi giới hạn cố hữu. 
Ngôi nhà được thiết kế để loại bỏ mọi giới hạn cố hữu. 
Căn nhà 72 m2 tạo cảm giác cứ 'tan ra, rộng rãi, xuyên suốt' - Ảnh 2
Căn nhà 72 m2 tạo cảm giác cứ 'tan ra, rộng rãi, xuyên suốt' - Ảnh 3
Căn nhà 72 m2 tạo cảm giác cứ 'tan ra, rộng rãi, xuyên suốt' - Ảnh 4
Hệ thống vách ngăn có thể di chuyển được, nhà vệ sinh ẩn trong tủ gỗ, nắng chiếu khắp nơi, gió thoảng qua nhè nhẹ...
Hệ thống vách ngăn có thể di chuyển được, nhà vệ sinh ẩn trong tủ gỗ, nắng chiếu khắp nơi, gió thoảng qua nhè nhẹ...
Căn nhà 72 m2 tạo cảm giác cứ 'tan ra, rộng rãi, xuyên suốt' - Ảnh 5
Căn nhà 72 m2 tạo cảm giác cứ 'tan ra, rộng rãi, xuyên suốt' - Ảnh 6
Căn nhà 72 m2 tạo cảm giác cứ 'tan ra, rộng rãi, xuyên suốt' - Ảnh 7
Khu vườn đan xen xuất hiện và biến mất thay thế nhau ở mọi không gian...
Khu vườn đan xen xuất hiện và biến mất thay thế nhau ở mọi không gian...
Căn nhà 72 m2 tạo cảm giác cứ 'tan ra, rộng rãi, xuyên suốt' - Ảnh 8
Căn nhà 72 m2 tạo cảm giác cứ 'tan ra, rộng rãi, xuyên suốt' - Ảnh 9
Ngôi nhà tạo ra cảm giác cứ thế tan ra, rộng rãi, xuyên suốt...
Ngôi nhà tạo ra cảm giác cứ thế tan ra, rộng rãi, xuyên suốt...
Căn nhà 72 m2 tạo cảm giác cứ 'tan ra, rộng rãi, xuyên suốt' - Ảnh 10
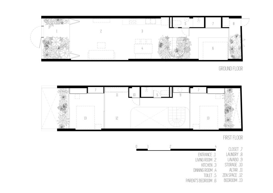
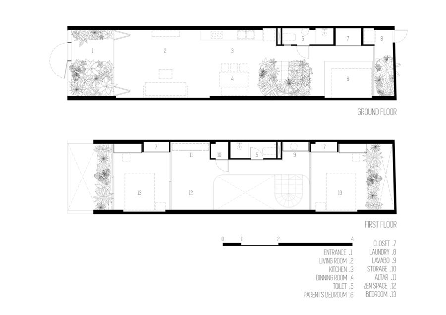
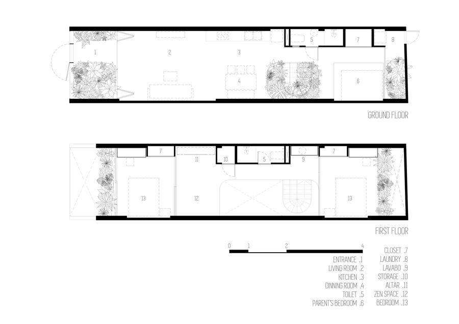
Mặt bằng ngôi nhà với từng không gian riêng.
Mặt bằng ngôi nhà với từng không gian riêng.
Mặt cắt thẳng đứng.
Mặt cắt thẳng đứng.

Link bài gốc

Tin Cùng Chuyên Mục